Construction Projects

Showcasing our exceptional work and innovative solutions across diverse industries and sectors

Federal Board of Supreme Audit

Federal Board of Supreme Audit

Location: Basra, Iraq

Size: 3,000 sqm

Client: Basra Investment Commission

Chemical Warehouse and Materials Receiving Shade

PROVISION OF CHEMICAL WAREHOUSE AND SEMI-OPEN MATERIALS RECEIVING SHADE

Location: B9

Size: 1500 sqm

Client: KUWAIT ENERGY IRAQ LIMITED (KEIL)

New Zubair Bridge

New Zubair Bridge

Location: Basra, Iraq

Client: Ashour Company

Commercial Building

Commercial Building

Location: Basra, Iraq

Size: 1200 sqm

Client: Privet

Basra Commercial-Industrial Building

Basra Commercial-Industrial Building

Location: Basra, Iraq

Size: 3500 sqm

Client: Privet

AL-Raha School

AL-Raha School

Location: Basra, Iraq

Size: 2000 sqm

Client: AL YAMAMA ENGINEERING SERVICE

New Accommodation Camp For Contractor's Personnel

New Accommodation Camp For Contractor's Personnel

Location: Basra, Iraq

Size: 70,000 sqm

Client: L.A.C , Eni, ZFOD

Abu Al-Kaseeb Urban Design

Abu Al-Kaseeb Urban Design

Location: Basra, Iraq

Size: 350,000,000 sqm

Client: Basra Government

Baghdad Road

Baghdad Road

Location: Basra, Iraq

Client: AL ASAB CO.

B9 Oilfield Road Upgrading Phase 2 Project

B9 Oilfield Road Upgrading Phase 2 Project

Location: Basra, Iraq

Client: AL DHAMIN CO. , KEIL

Pipe Line Project 20 inch Rafidiya DGS to Zubair DGS

Pipe Line Project 20" Rafidiya DGS to Zubair DGS (PHASE 1)

Location: Basra, Iraq

Client: TAAM

Medical Consultancy Center

Medical Consultancy Center

Location: Basra, Iraq

Client: AL HADATHA CO. FOR ENGINEERING & CONSULTATION

Basra Cancer Childers Hospital-New Oncology Ward Extension Building

Basra Cancer Childers Hospital-New Oncology Ward Extension Building

Location: Basra, Iraq

Size: 500 sqm

Client: L.A.C, Eni Iraq, B.O.C

Gym Building and Facilities

Gym Building and Facilities

Location: Basra, Iraq

Size: 1200 sqm

Client: AL QUBBA ENGINEERING, KEIL

BOC Administration Building - Siba Field

ARCHITECTURAL DRAWINGS OF BOC ADMINISTRATION BUILDING - SIBA FIELD

Location: Basra, Iraq

Size: 1500 sqm

Client: AL QUBBA ENGINEERING, KEIL

BOC Administration Building - Siba Field

ARCHITECTURAL DRAWINGS OF BOC ADMINISTRATION BUILDING - SIBA FIELD

Location: Basra, Iraq

Size: 1500 sqm

Client: AL QUBBA ENGINEERING, KEIL

Green Belt Project - Siba Gas Field

Green Belt Project

Project: PROVISION OF GREEN BELT STUDY FOR SIBA GAS FIELD

Location: Basra, Iraq

Selected Project: Administrative building project

Size: 10.6 km

Client: KEIL

MANAWI SENTER - Office Building

MANAWI SENTER

Project Type: Office building project

Location: Iraq - Basra

Size: 500 sqm

Client: A.M.S

NEW AL IBDAE SCHOOL - Educational Project

NEW AL IBDAE SCHOOL

Project Type: Educational Project

Location: Iraq - Basrah

Size: 10,000 sqm

Client: ENI

Steel Warehouse for Industrial Gas Factory

Steel Warehouse for Industrial Gas Factory

Project Type: Industrial Warehouse

Location: Iraq - Basra

Size: 2000 sqm

Client: North field CO.FOR TRADE

Commercial Building - AlSinaa Street, Baghdad

Commercial Building

Project Type: Commercial Building

Location: Iraq - Baghdad - AlSinaa Street

Size: 600 sqm

Client: A.M.S

Tool Room and Welding Workshop - Siba Gas Field

Tool Room & Welding Workshop

Project: Provision of Construction Services for Tool Room and Welding Workshop - Siba Gas Field

Location: Iraq - Basrah

Size: 150 sqm

Client: KEIL

SIBA 1 - Well Pad Modification

SIBA 1 - Well Pad Modification

Project Type: Structure Project

Location: Iraq - Basrah

Client: KEIL

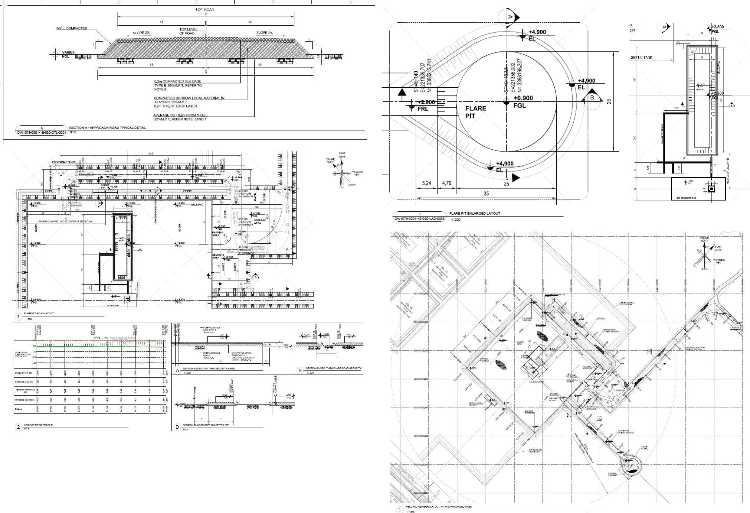
Well Pad Construction for Water Disposal Well

Well Pad Construction - Water Disposal Well

Project Type: Structure Project

Location: Iraq - Basrah

Client: KEIL

Decoration Services for 2nd Floor of Admin Building

Decoration Services - Admin Building 2nd Floor

Project Type: Construction Project

Location: Iraq - Basra

Client: KEIL

Kitchen Design

KITCHEN DESIGN

Location: Iraq - Basra

Client: UEG

Dental Clinic Project

DENTAL CLINIC PROJECT

Location: Iraq - Basra

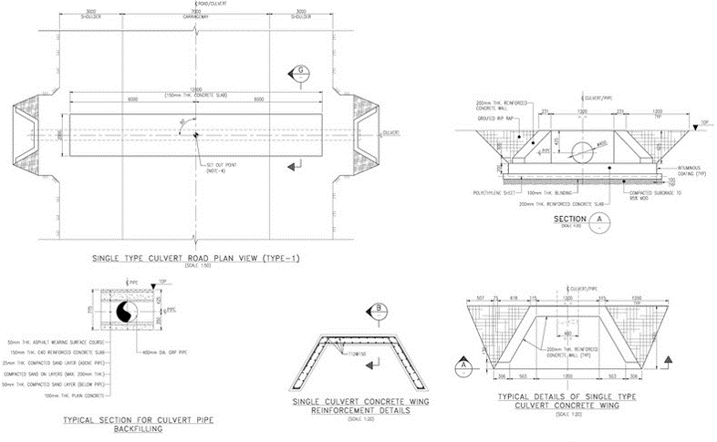
EPC Services for Road Rehabilitation

EPC Services - Road Rehabilitation

Project: Provision of EPC Services for Road Rehabilitation (CPF Main Road to Strategic Road)

Location: Iraq - Basra

Client: S.N.C